פיתוח נוף לשכונות מגורים ויישובים כפריים
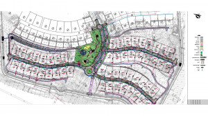
קלע אלון - תכנון נופי מפורט להרחבת הישוב – 52 מגרשי מגורים
- מזמין הפרוייקט: מועצה אזורית גולן
- סטטוס הפרוייקט: מכרז בצוע - 2024
פיתוח נופי לרחובות ההרחבה ביישוב. תפיסת נטיעות רחוב המבוססת על החדרת צומח טבעי מקומי לסביבות המגורים העכשוויות. תכנון השצ"פ המרכזי מבוסס על מרכיב מרכזי בדמות נחל גולני הזורם בסירקולציה, ולאורכו בריכת שכשוך ובריכה אקולוגית. טיהור ביולוגי של מי הנחל מתבצע באמצעות 2 אגנים ירוקים. לאורך הנחל צומח אופייני לגדות נחלים. בנוסף, נוף השצ"פ כולל שחזור יער אלון התבור ובוסתן עצי פרי.
צרו קשר
כתובתנו
גבעת ישעיהו 148, ד.נ. האלה, 99825
טלפון
02-9922350052-2329766
